Kenmerken

Overdracht

  • StatusVerkocht
  • Vraagprijs€ 425.000,- k.k.
  • AanvaardingIn overleg

Bouwvorm

  • Soort objectWoonhuis
  • Soort woningEengezinswoning
  • Type woningEindwoning
  • Bouwjaar1985
  • BouwvormBestaande bouw
  • LiggingenAan rustige weg, In woonwijk

Indeling

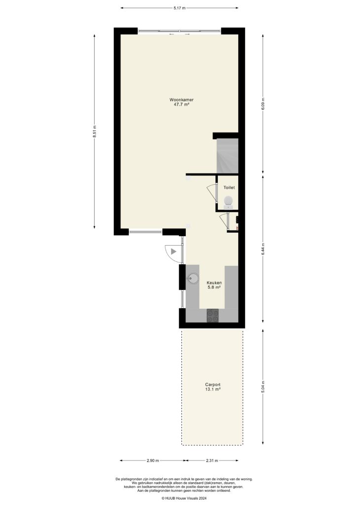
  • Woonoppervlakte123 m2
  • Perceeloppervlakte198 m2
  • Inhoud439 m3
  • Aantal kamers5
  • Aantal slaapkamers4

Energie

  • EnergieklasseB

Buitenruimte

  • TuinAchtertuin, Voortuin
  • HoofdtuinAchtertuin
  • Oppervlakte67 m2
  • Ligging hoofdtuinZuidoost
  • AchteromJa
  • Kwaliteit tuinNormaal

Bergruimte

  • Schuur / BergingVrijstaand hout
  • Totaal aantal1

Parkeergelegenheid

  • Parkeer faciliteitenOpenbaar parkeren, Op eigen terrein
  • GarageGeen garage

Dak

  • Soort dakZadeldak
  • Materiaal dakPannen

Beschrijving

* Let op, de vraagprijs betreft een bieden vanaf prijs (starting price) *

Hoe meld ik mij aan voor een bezichtiging?
Het aanmelden voor een bezichtiging kan via Funda of onze website. Bezichtigingen worden ingepland op volgorde van binnenkomst.

How do I request a property viewing?
Please use the form on Funda or our website to request a property viewing. Viewings are scheduled based upon time/date of entry.

Ben je op zoek naar een fijne gezinswoning welke is gelegen in een rustige kindvriendelijke wijk? Kom dan kijken bij de Stellingmolenstraat 52! Deze 5-kamerwoning heeft een woonoppervlakte van ca. 123m2 met een zeer ruime en fraai aangelegde tuin gelegen op het zuidoosten.

LOCATIE
De woning heeft een mooie centrale ligging in de kindvriendelijke Molenbuurt in Almere-Buiten. De woning ligt op loopafstand van alle openbare voorzieningen, als kinderopvang, basisscholen, winkels, openbaar vervoer (de bushalte is op loopafstand aanwezig) en het gezondheidscentrum. Binnen enkele minuten fiets je naar het centrum van Almere-Buiten en het NS-Station Almere-Buiten. Met de auto rij je je binnen enkele minuten richting de Hoge Ring en de A6 richting Amsterdam of Lelystad.

BEGANE GRONDVERDIEPING
Entree, met rechts direct de keuken in ruime U-opstelling. De keuken is voorzien van verschillende inbouwapparatuur zoals vaatwasser, oven, magnetron, 5-pits gasfornuis en afzuigkap. De woonkamer is maar liefst X meter lang en en erg licht. Dit komt door de dubbele schuifdeur in de achterpui die bijna over de gehele breedte van de woning loopt. Wanneer je de tuin in stapt waan je je direct in tropische sferen en komt het zomergevoel je tegemoet. De tuin is fraai aangelegd met een mooie mix van groene borders, gras en palmbomen. Je hebt twee plekken in de tuin waar je een lounge gedeelte kan inrichten. Namelijk direct wanneer je de tuin in loopt en achterin de tuin.

Achterin de tuin vind je nog een kleine schuur, altijd handig voor de tuinspullen. Ook heb je een waterkraan aan de achtergevel en een elektrisch zonnescherm voor het creëren van wat schaduw in de tuin.

De gehele begane grondverdieping is voorzien van vloerverwarming.

EERSTE VERDIEPING
Ook deze verdieping is geheel voorzien van vloerverwarming (behalve de badkamer). Je vindt hier drie slaapkamers. Twee aan de achterzijde (tuinzijde) en één slaapkamer aan de voorzijde. De badkamer is voorzien van douche cabine, toilet en wastafel met meubel. Net als op de eerste verdieping heb je ook op deze verdieping de luxe van vloerverwarming. Via de trap kom je vervolgens op de zolderverdieping.

ZOLDERVERDIEPING
Op deze verdieping vind je de wasmachine aansluiting en de omvormer van de zonnepanelen. Op het dak liggen 15 zonnepanelen (in eigendom). De CV ketel is in eigendom (2020). De mechanische ventilatiebox is in 2023 vernieuwd. Op deze verdieping vind je verder de vierde ruime slaapkamer. Door de dakkapel is de zolderverdieping ruimer en komt er meer daglicht binnen.

BIJZONDERHEDEN:
- Nette eindwoning in de Molenbuurt
- Woonoppervlakte van ca. 123m2
- Perceeloppervlakte van ca. 198m2
- 15 zonnepanelen
- Vloerverwarming aanwezig
- Oprit met carport
- Gunstige ligging tuin (zuidoosten)
- Overal kunststof kozijnen
- Energielabel B
- Oplevering in overleg

Brochure

Download de brochure met daarin alle informatie

Download brochure

Plattegronden

Plattegrond ,
Plattegrond ,
Plattegrond ,
Plattegrond ,

Kaart