Kenmerken

Overdracht

  • StatusVerkocht
  • Vraagprijs€ 290.000,- k.k.
  • AanvaardingIn overleg

Bouwvorm

  • Soort objectAppartement
  • Soort appartementPortiekflat
  • Bouwjaar2018
  • BouwvormBestaande bouw
  • LiggingenIn centrum

Indeling

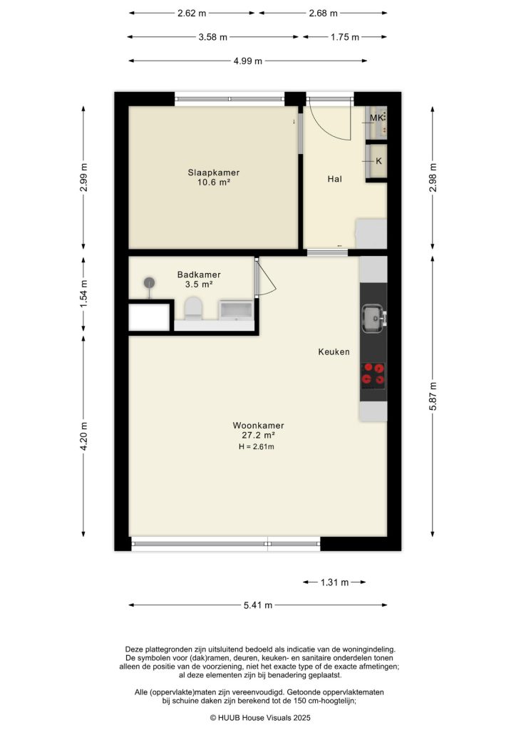
  • Woonoppervlakte48 m2
  • Inhoud160 m3
  • Aantal kamers2
  • Aantal slaapkamers1
  • Aantal woonlagen1

Energie

  • EnergieklasseA

Buitenruimte

  • TuinGeen tuin
  • AchteromNee

Parkeergelegenheid

  • Parkeer faciliteitenOpenbaar parkeren, Betaald parkeren, Parkeervergunningen
  • GarageGeen garage

Dak

  • Soort dakPlat dak

Beschrijving

* Let op, de vraagprijs betreft een bieden vanaf prijs (starting price) *

Midden in het bruisende stadshart van Almere-Stad, ligt dit keurige appartementencomplex met lift. Het 2-kamerappartement is gelegen op de derde verdieping. Op loopafstand van het NS treinstation, bushalte, winkels, horeca, bioscoop, Weerwater en de wekelijkse markt. Het appartement is goed geïsoleerd (energielabel A). Ten opzichte van andere appartementen in het complex, heeft dit appartement een aparte slaapkamer en heb je een ruime buitenruimte.

Nieuwsgierig geworden naar dit leuke appartement in het centrum van Almere? Neem dan snel contact op met Smink Taxatie en Makelaardij voor het inplannen van een bezichtiging en wij laten je met veel enthousiasme dit appartement zien!

Op de begane grondverdieping is de gemeenschappelijke centrale hal met de brievenbussen en bellentableau. Met de lift of trap bereik je de derde verdieping waar het appartement is gelegen.

DERDE VERDIEPING
Het appartement is gunstig gelegen in het complex. Aan de voorzijde van je appartement heb je een terras waardoor je hier aan de zonnige zijde heerlijk buiten kan zitten. Via de voordeur kom je binnen in de hal met de meterkast, ruimte voor de garderobe en ook een handige plek voor de wasmachine. Rechts heb je direct de separate slaapkamer. Goed bemeten, met voldoende ruimte voor een tweepersoonsbed en een royale kledingkast.

Vervolgens kom je via de gang in de badkamer en woonkamer met open keuken. De badkamer is voorzien van wastafel en inloopdouche. Verder zijn zowel de vloer- als de wanden netjes betegeld.

Zowel de woonkamer als de slaapkamer zijn van de hal af te sluiten met een industriële schuifdeur, ideaal gedaan zodat je optimaal gebruik maakt van de woonoppervlakte van het appartement. De complete keuken is voorzien van inbouw apparatuur te weten: vaatwasser, inductie kookplaat, afzuiging, combi-magnetron en koel-/vriescombinatie.

De woonkamer is een fijne ruimte, met veel natuurlijk lichtinval door de enorme raampartijen die aanwezig zijn.

Op het dak is een gemeenschappelijk dakterras aanwezig. In de onderbouw vind je een gemeenschappelijke fietsenstalling.

BIJZONDERHEDEN:
- Centraal gelegen in Almere Centrum
- Woonoppervlakte ca. 48m2
- Twee kamerappartement
- Moderne keuken
- Lift aanwezig
- Gezamenlijk dakterras
- Energielabel A
- Niet-bewoningsclausule van toepassing
- Servicekosten ca. € 108,48 per maand
- Oplevering kan snel

Plattegronden

Plattegrond ,

Kaart