Kenmerken

Overdracht

  • StatusOnder bod
  • Vraagprijs€ 485.000,- k.k.
  • AanvaardingIn overleg

Bouwvorm

  • Soort objectWoonhuis
  • Soort woningEengezinswoning
  • Type woningTussenwoning
  • Bouwjaar2001
  • BouwvormBestaande bouw
  • LiggingenAan rustige weg, In woonwijk

Indeling

  • Woonoppervlakte129 m2
  • Perceeloppervlakte155 m2
  • Inhoud471 m3
  • Aantal kamers5
  • Aantal slaapkamers4
  • Aantal badkamers1

Energie

  • EnergieklasseA

Buitenruimte

  • TuinAchtertuin, Voortuin
  • HoofdtuinAchtertuin
  • Oppervlakte62 m2
  • Ligging hoofdtuinZuid
  • AchteromJa
  • Kwaliteit tuinVerzorgd

Bergruimte

  • Schuur / BergingVrijstaand hout
  • VoorzieningenVoorzien van elektra
  • Totaal aantal1

Parkeergelegenheid

  • Parkeer faciliteitenOpenbaar parkeren, Op eigen terrein
  • GarageGeen garage

Dak

  • Soort dakLessenaardak

Beschrijving

** Let op, de vraagprijs dient te worden gezien als bieden vanaf prijs (starting price) **

Ben je op zoek naar een instapklare gezinswoning met een zonnige tuin op het zuiden en parkeren voor de deur? Dan is dit de woning die zoekt! De woning is keurig onderhouden, beschikt over een nette keuken en badkamer en heeft maar liefst vier ruime slaapkamers. De fraai aangelegde tuin is een heerlijke plek om te ontspannen met familie en vrienden.

SMINK Taxatie en Makelaardij in Almere biedt deze leuke gezinswoning aan de Leo Gestelstraat 52 aan. Nieuwsgierig geworden? Neem contact met ons op voor het inplannen van een bezichtiging en wij vertellen je graag meer over deze woning!

LOCATIE
De woning is gelegen in de populaire en ruim opgezette wijk Tussen de Vaarten, een fijne en kindvriendelijke omgeving met alle dagelijkse voorzieningen binnen handbereik. De bereikbaarheid is uitstekend: openbaar vervoer bevindt zich op korte afstand en scholen, winkels, kinderopvang, sportschool en een gezondheidscentrum zijn allemaal in de directe omgeving aanwezig.

Ook qua bereikbaarheid zit je hier perfect. Uitvalswegen zoals de A6 en de Hoge Ring zijn snel en eenvoudig te bereiken. Daarnaast zijn zowel het Stadshart Almere Centrum als het winkelcentrum van Almere Buiten goed te bereiken.

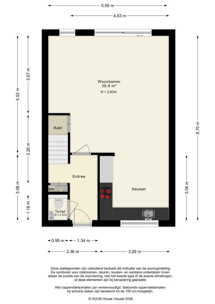
BEGANE GROND
Je komt binnen in de hal met de meterkast, separaat modern toilet en de plek voor de garderobe. Aan de voorzijde bevindt zich de nette keuken, die is uitgerust met diverse inbouwapparatuur zoals een koel-vriescombinatie, oven, combimagnetron, vaatwasser en een inductiekookplaat met afzuigkap. De keukenfronten zijn vernieuwd in 2023 en de kookplaat is recent vervangen in 2024.

De begane grond is afgewerkt met een fraaie laminaatvloer in combinatie met vloerverwarming. Het strak gestucte plafond met sfeervolle inbouwspots zorgt voor een moderne en warme uitstraling. Via de schuifpui stap je zo de keurig aangelegde achtertuin in, waar binnen en buiten naadloos in elkaar overlopen mede door de keuze van de keramische houtlook tegels in de tuin.

Achterin de tuin vind een separate berging en de achterom. Daarnaast beschikt de woning over een elektrisch zonnescherm, ideaal voor de zonnige dagen, op deze manier heb je altijd een fijn plekje in de schaduw.

EERSTE VERDIEPING
Op de eerste verdieping bevinden zich drie goed bemeten slaapkamers. Twee slaapkamers liggen aan de achterzijde van de woning, waaronder de ruime hoofdslaapkamer, die is voorzien van airconditioning. De derde slaapkamer bevindt zich aan de voorzijde van de woning net als de badkamer.

De moderne badkamer is voorzien van een dubbele wastafel, inloopdouche, toilet, handdoekradiator en een heerlijk whirlpoolbad. Daarnaast is het plafond keurig strak gestuct en voorzien van sfeervolle inbouwspots.

ZOLDERVERDIEPING
De zolderverdieping beschikt over een overloop en de vierde slaapkamer met directe toegang tot het balkon. De slaapkamer is licht vanwege de vele raampartijen waardoor er veel daglicht naar binnen schijnt.

Daarnaast bevindt zich op deze verdieping ook de wasruimte, met veel opbergruimte. Ook zijn hier de omvormer van de zonnepanelen en de mechanische ventilatiebox.

BIJZONDERHEDEN
- Centraal gelegen in Tussen de Vaarten
- Woonoppervlakte ca. 129m2
- Heerlijke tuin en balkon op het zonnige zuiden
- Goed onderhouden
- Balkon op het zonnige zuiden van ca. 17m2
- Energielabel A (geldig t/m 2028)
- Zonnepanelen 15 stuks (eigendom, 2022)
- Buitenschilderwerk 2022
- Moderne keuken en badkamer
- Parkeren op eigen terrein voor 2 auto's
- Oplevering in overleg

Brochure

Download de brochure met daarin alle informatie

Download brochure

Plattegronden

Plattegrond ,
Plattegrond ,
Plattegrond ,
Plattegrond ,

Kaart