Kenmerken

Overdracht

  • StatusOnder bod
  • Vraagprijs€ 400.000,- k.k.
  • AanvaardingIn overleg

Bouwvorm

  • Soort objectWoonhuis
  • Soort woningEengezinswoning
  • Type woningTussenwoning
  • Bouwjaar1998
  • BouwvormBestaande bouw
  • LiggingenAan rustige weg, In woonwijk

Indeling

  • Woonoppervlakte96 m2
  • Perceeloppervlakte130 m2
  • Inhoud348 m3
  • Aantal kamers4
  • Aantal slaapkamers3
  • Aantal badkamers1

Energie

  • EnergieklasseA

Buitenruimte

  • TuinAchtertuin, Voortuin
  • HoofdtuinAchtertuin
  • Oppervlakte65 m2
  • Ligging hoofdtuinNoordoost
  • AchteromJa
  • Kwaliteit tuinNormaal

Bergruimte

  • Schuur / BergingVrijstaand hout
  • VoorzieningenVoorzien van elektra
  • Totaal aantal1

Parkeergelegenheid

  • Parkeer faciliteitenOpenbaar parkeren
  • GarageGeen garage

Dak

  • Soort dakZadeldak
  • Materiaal dakPannen

Beschrijving

Hoe meld ik mij aan voor een bezichtiging?
Het aanmelden voor een bezichtiging kan via Funda of onze website. Bezichtigingen worden ingepland op volgorde van binnenkomst.

How do I request a property viewing?
Please use the form on Funda or our website to request a property viewing. Viewings are scheduled based upon time/date of entry.

** Let op, de vraagprijs dient te worden gezien als bieden vanaf prijs **

Ideale starterswoning gelegen midden in de populaire en kindvriendelijke Seizoenenbuurt in Almere Buiten. De woning is keurig onderhouden en in 2022 bijna geheel gemoderniseerd. Zo is er een nieuwe keuken, toilet en badkamer geplaatst. Daarnaast zijn onder andere alle wanden en plafonds strak gestuct, alle vloeren vervangen, er is een prachtige cinewal en plafond hoge industriële-look deur geplaatst. Daarnaast zijn ook de afdekplaatjes van het schakelmateriaal vervangen.

De woning heeft 9 zonnepanelen en heeft een energielabel A. Op de eerste verdieping is de voormalige derde kamer nu in gebruik als inloopkast, echter is dit eenvoudig weer om te bouwen naar een derde slaapkamer. Op zolder zijn er mogelijkheden voor een dakkapel.

Nieuwsgierig geworden naar de woning? Smink Taxatie en Makelaardij laat je met veel enthousiasme de woning zien. Neem contact op met ons kantoor voor het inplannen van een afspraak!

LOCATIE
De woning is gelegen in de geliefde Seizoenenbuurt, een kindvriendelijke wijk met op fietsafstand het winkelcentrum van Almere Buiten met diverse winkels, supermarkten en horeca. Tevens ligt het NS-station van Almere Oostvaarders op circa 10 minuten loopafstand met directe treinverbindingen naar o.a. Amsterdam en Lelystad. Wist je dat je vanaf de woning binnen enkele minuten bij de prachtige Oostvaarderplassen bent? Ook rij je vanaf de de woning binnen enkele minuten richting de uitvalswegen A6 en A27.

BEGANE GRONDVERDIEPING
Entree, hal met meterkast en toilet. Het moderne toilet is in 2022 geheel vernieuwd. De woonkamer heeft aan de voorzijde de open keuken. Deze is in 2022 geheel vernieuwd en voorzien van de nodige inbouwapparatuur, denk aan vaatwasser, oven, koel-/vriescombinatie, inductiekookplaat en afzuigkap. Alle apparatuur (behalve de afzuigkap) is van Siemens.

Op de begane grondverdieping heb je radiatoren en vloerverwarming als bijverwarming. Via de woonkamer bereik je de tuin van maar liefst 13 meter diep. In de tuin vind je altijd wel een plekje in de zon of in de schaduw. Achterin de tuin vind je de separate berging en de achterom. Momenteel is er geen schutting tin de tuin tussen de buren, echter zorgen de huidige eigenaren voor een nieuwe schutting.

EERSTE VERDIEPING
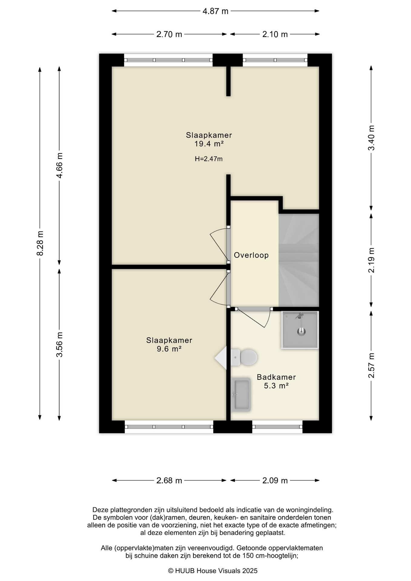
Hier vind je momenteel twee slaapkamers en de badkamer. Eén slaapkamer is gelegen aan de voorzijde en de master bedroom met aansluitend de inloopkast is gelegen aan de achterzijde. De badkamer is in 2022 geheel vernieuwd en voorzien van ruime inloopdouche met regen- en handdouche, toilet en wastafel met meubel. De badkamer is verder afgewerkt met fraaie tegels zowel op de vloer als wand.

ZOLDER
Op deze verdieping heb je op de overloop de wasmachine opstelling met ook plek voor de droger. Hier hangt ook de CV ketel (huur). De mechanische ventilatiebox is in 2023 vernieuwd. Op deze verdieping bevindt zich de derde slaapkamer. De ruime slaapkamer loopt van voor naar achter, door de aanwezig dakramen komt er veel natuurlijk licht naar binnen.

Zowel op de eerste- als op de zolderverdieping ligt een keurige PVC vloer in visgraat motief.

BIJZONDERHEDEN
- Moderne instapklare eengezinswoning
- In 2022 bijna geheel gemoderniseerd
- Er wordt een nieuwe schutting geplaatst in de tuin
- Bouwjaar 1998
- Woonoppervlakte ca. 96m2
- Moderne keuken en badkamer
- Zonnepanelen 9 stuks in eigendom
- CV ketel huur van € 30,- per maand inclusief onderhoudscontract
- Mogelijkheid tot een vierde slaapkamer
- Energielabel A
- Oplevering in overleg, kan snel

Plattegronden

Plattegrond ,
Plattegrond ,
Plattegrond ,
Plattegrond ,

Kaart